سنگفرش (کفپوش) بتنی دمبلی | خرید مستقیم از کارخانه
سنگفرش (کفپوش) دمبلی یکی از متداول ترین انواع سنگفرش است که در بسیاری از معابر شهری مورد استفاده قرار می گیرد. این سنگفرش به واسطه شکل خود، به نحوی نصب می گردد که اضلاع آن با سنگفرش های همجوار جفت شده و ظاهر زیبایی به معبر می دهد. شما در این صفحه می توانید با مشخصات فنی و ابعاد سنگفرش دمبلی آشنا شده و در ادامه به تماشای تصاویر و شماتیک این محصول کاربردی بپردازید.
مشخصات فنی سنگفرش بتنی دمبلی
| عنوان | شرح |
|---|---|
| نام محصول | سنگفرش یا کفپوش بتنی دمبلی |
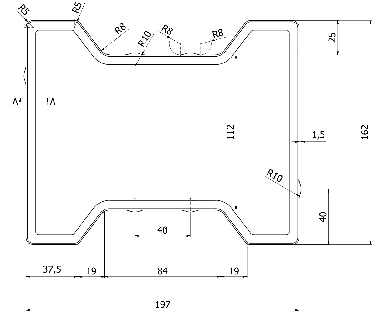
| ابعاد | ۱۹۷ در ۱۶۲ میلیمتر |
| ضخامت | ۶۰ میلیمتر |
| وزن هر کفپوش | به زودی |
| تحمل وزن | پیاده، سواره سبک |
| تعداد در هر پالت | به زودی |
| متراژ تحت پوشش هر پالت | به زودی |
| وزن هر پالت | به زودی |
| تعداد پالت در هر تریلی | به زودی |
محاسبه متراژ و تعداد پالت
همانطور که در جدول فوق مشاهده می فرمایید، واحد فروش سنگفرش های بتنی پیش ساخته بر مبنای پالت است. برای آنکه بتوانید تعداد پالت مورد نیاز برای پروژه خود را محاسبه کنید، شما باید متراژ پروژه خود را تقسیم بر متراژ تحت پوشش هر پالت کنید تا مشخص شود که پروژه شما نیاز به چند پالت سنگفرش بتنی دارد.
تحمل وزن در هر محصول
موضوع دیگری که توجه به آن بسیار مهم است، این است که هر سنگفرش بتنی توان تحمل وزن مشخصی را دارد. اگر قصد دارید از سنگفرش های بتنی برای محل عبور خودروها استفاده کنید، لازم است توجه داشته باشید که این نوع سنگفرش برای انواع خودروهای سبک طراحی شده و یا خودروهای سنگین (کفپوش هایی که تحمل وزن خودروهای سنگین را داشته باشند، معمولا ۸۰ میلیمتر ضخامت دارند).
تصاویر سنگفرش (کفپوش) بتنی دمبلی

سنگفرش کفپوش بتنی دمبلی

ابعاد و اندازه سنگفرش کفپوش بتنی دمبلی

شماتیک سنگفرش کفپوش بتنی دمبلی
نظرات کاربران















